2-эт. дом (160 м²) на 9 сотках
| Стоимость | 19 999 999 |
|---|---|
| Комнат в доме | 5 |
| Статус земли | ИЖС |
| Тип комнат | раздельные |
| Право собственности | Собственник |
| Тип парковки | За шлагбаумом во дворе |
| Категория земли Avito | Дачное некоммерческое партнёрство (ДНП) |
| Способ связи avito | По телефону и в сообщениях |
| Материал стен (Авито дома) | Брус |
| Тип отопления cian | Электрическое |
| Тип дома cian | Клееный брус |
| Тип строения | Дом |
| Площадь, кв.м. | 160 |
| Площадь участка, сот | 9 |
| Этажность | 2 |
| Материал стен | Брус |
| Отопление | Электрическое |
| Населенный пункт | Саморядово Деревня |
|---|---|
| Шоссе | Дмитровское шоссе |
| Улица | улица Счастливая |
Продается прекрасный дом с евроремонтом в живописном месте Подмосковья!
2 – этажный дом площадью 160 кв.м. с 4 -мя изолированными комнатами на участке 9 соток правильной прямоугольной формы.
Дом на монолитном фундаменте, сделан из бруса, хорошо утеплен, зимой будет всегда тепло , летом - будете насладитесь живительной прохладой.
Крыша металлочерепица с качественными снегозадержителями.
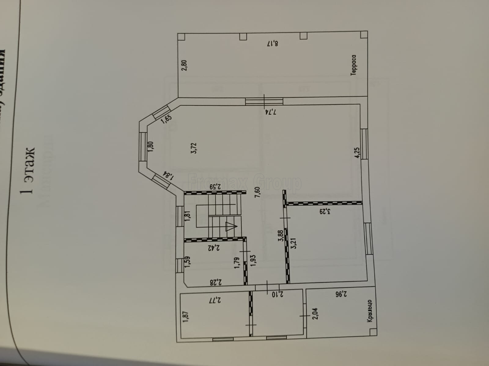
1 этаж: большая и просторная гостиная с панорамными окнами, совмещенная с кухонной зоной (34 кв.м), кухня сделана из качественных материалов со всей необходимой техникой (в т.ч. установлены фильтры питьевой воды), уютная комната (11 кв.), санузел с душевой кабиной (4,3 кв.м), техническая зона и кладовая (5,2 кв.м), коридор (4,3 кв.м), крыльцо правильной формы (6 кв.м), большая терраса с видом на сад и лаундж зоной (23 кв.м), дополнительное место хранения прямо под лестницей (2 кв.м), высота потолков 3,72 м.
2 этаж: 1- комната (14.2 кв.м) с большим окном, 2-комната ( 18.8 кв.м ) с выходом на балкон, 3-я комната (10 кв.м) с выходом на балкон, санузел (4,9 кв.м), шикарный большой балкон (10.7 кв.м) с видом на р. Саморядовка, зона хранения (1,2 кв.м), высота потолков 3,78 м.
Свободный доступ на чердак дает возможность дополнительного места для хранения.
Мебель и бытовая техника остается частично, но больная ее часть.
Коммуникации: свет 15 кВт, септик, скважина, электрический котел отопления, интернет, ТВ антенна
Территория: 9 соток правильной прямоугольной формы, вдоль всего участка была проведена ливневая канализация, что гарантирует сухость и влагоустойчивость. Земля – чернозем, что позволят разбить мини сад и зону отдыха прямо около дома. На участке высажены садово - плодовые деревья (5 лет), так что ждите в ближайшее время урожай. Обустроена мангальная зона отдыха.
Дополнительные постройки: гараж для мотоцикла – полностью обустроен, возможно, переоборудование в рабочий кабинет для «домашнего мастера», дровница .
Парковочное место (асфальт) на 2-3 машины.
Ворота металлические с автоматическим открыванием.
Возможна прописка. Возможна ипотека. Все документы готовы, быстрый выход на сделку.
Остались вопросы? Звоните.







































































































